ÚvodDomy a bytyTypy domovMagický dizajn kontajnerového domu

Magický dizajn kontajnerového domu

Tento štýlový kontajnerový dom má na svedomí architektonické štúdio MAPA pôsobiace predovšetkým v Brazílii a Uruguaji. Jedná sa o prefabrikovaný modulárny dom, ktorý bol na pozemok privezený nákladným autom. Oba konce domu sú presklené.

 

Magický dizajn kontajnerového domu

 

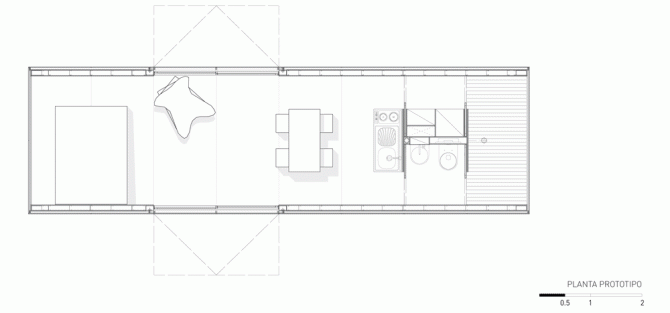
V jednom z koncov sa nachádza spálňa a v druhom je sprchovací kút, ktorý možno otvoriť do exteriéru. Hlavný vchod do domčeka je z boku. Celá dispozícia je prehľadne znázornená v pôdoryse.

 

Magický dizajn kontajnerového domu

 

Dom je vybavený zberačom dažďovej vody, ktorý je integrovaný do zelenej strechy. Celá konštrukcia je nad terénom, aby bola chránená proti zemnej vlhkosti. Výklopné bočné steny vytvoria krytú terasu, ktorá v teplých mesiacoch zdvojnásobí plochu obývacej izby . Srdce domu tvorí jadro, v ktorom je integrovaná kuchyňa, toaleta, sprcha a technické sekcie s práčkou a ovládaním kúrenia.

 

Magický dizajn kontajnerového domu

 

Magický dizajn kontajnerového domu

 

Magický dizajn kontajnerového domu

 

Foto: http://mapaarq.com

Autor: Ivan Nôta

© WEBY GROUP
Publikovanie a ďalšie šírenie článkov zo zdrojov internetového portálu Stavebník.sk, alebo ich jednotlivých častí, je bez predchádzajúceho písomného súhlasu spoločnosti Weby Group s.r.o zakázané. V prípade, že máte o ďalšie šírenie článkov záujem, nás kontaktujte na adrese stavebnik@stavebnik.sk

7943